天津卷帘式挡烟垂壁安装图示
作者: 发布时间:2023-02-21 13:21:28点击:18410


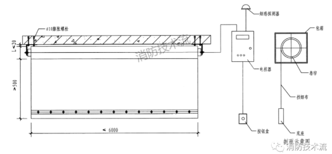
1.主电源:AC220V、1A,控制电源:DC24V 3.单樘挡烟宽度: 600~6000mm,对于跨度较大的区域可设置两樘相互搭接安装。且搭接宽度应满足不小于100mm5.软质挡烟垂壁耐风性能:在5m/s风速中,挡烟垂壁倾角<15°1.与消防联动控制器联动,控制卷帘挡烟垂壁垂落,归底信号反馈消控中心。2.直接接收“烟感”信号,控制卷帘挡烟垂壁垂落,归底信号反馈消控中心。3.消控中心用按钮,手动控制卷帘挡烟垂壁上升和垂落。4.AC220V失电时,由备用电源控制卷帘挡烟垂壁垂落,归底信号反馈消控中心。